Radev Illam – Premium Residential Development
An ongoing 9,800 sq. ft. apartment project comprising 5 residential units, thoughtfully designed and under construction at Anna Nagar, Pammal, Chennai.


Clients:
Services:
“A 5-unit apartment project developed with modern planning, quality construction standards, and efficient space utilization.”
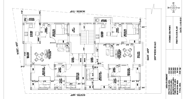
Project Overview
Radev Illam is a 9,800 sq. ft. residential apartment project featuring five well-planned units in Anna Nagar, Pammal, Chennai. Designed to provide comfortable and functional living spaces, the project is being executed with a focus on structural strength, quality materials, and timely progress. With a construction value of ₹2200 per sq. ft., the development reflects a balance of affordability and quality workmanship
Highlight Features
- 5 well-designed residential units with optimized space planning
- Quality construction standards at ₹2200 per sq. ft. pricing
The Results
- Structured development progressing as per planned timeline
- Enhanced residential value in a prime locality
Frequently Asked Question
Find Answers to our Question about Our Consulting Coverage Options.
Still Have Questions?
We’re here to help you!
Collaborations and cultivating a global community of diverse individuals who are dedicated making positive.
Collaborations and cultivating a global community of diverse individuals who are dedicated making positive.
Collaborations and cultivating a global community of diverse individuals who are dedicated making positive.
Collaborations and cultivating a global community of diverse individuals who are dedicated making positive.
Have Any Questions?
The point of using Lorem Ipsum is that it has more or less normal
Your Trusted Partner in Construction.
Crafting compelling digital experiences that captivate and drive meaningful connections. our digital agency combines innovation online success.

